

HOUSE ON STATION ROAD
As part of the larger masterplan for Bletchingdon village, this new house extends the residential development along Station Road, continuing the architectural language of Cornish stone and slate.
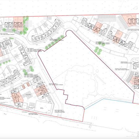
This project was developed for Roberts and Stone Studio as part of the masterplan for 58 homes and a new primary school in the village of Bletchingdon, near Oxford.The proposed house completes the south-east corner of the site and is currently in its design phase.
The building presents two key elevations: one addressing the corner of the plot, and the other facing Station Road, reinforcing the village streetscape. The material palette — Cornish stone walls and slate roofing — follows the architectural character established throughout the development, ensuring continuity and harmony with the surrounding context.
The project contributes to the final completion of the masterplan, strengthening both the architectural cohesion and the overall identity of the neighborhood.
Project Gallery









